来源:建筑工程鲁班联盟
样板引路是创建优质工程的必备法宝,最有效的办法是在大面积施工之前,在首层设置样板层,不仅可以指导并监督施工,而且有助于提升项目形象,可谓是一举多得。本文以中建二局项目为例,看一看该工程如何在首层布置样板层,学习了!

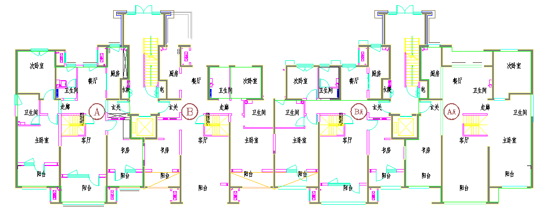
本工程首层分东西两个单元,东单元东西两户为A-反、B-反户型,东单元东西两户为A、B户型:

首层建筑平面图
根据首层户型特点以及工程阶段特点,样板展示区划分为四大区域:
(1)A-反户型为主体结构样板区
(2)B-反户型为二次结构样板区
(3)B户型为粗装修样板区
(4)A户型为粗装修完成区

样板展示区划分示意图
观摩行走路线:样板层出入口位于2#东侧安全通道位置,东、西展示区域由电梯间公共走廊及单元分户墙连接:

样板展示区行走路线图
展示区部署实施


展示内容
1、外墙穿墙螺栓洞口封堵
封堵措施:采用1:2微膨胀水泥砂浆封堵,外墙面孔洞周边涂抹直径100mm,1.5mm厚沥青油膏防水。

2、卫生间、厨房烟风道反坎样板
做法:烟道口四周上做100mm宽、150mm高钢筋混凝土反坎(上下各2∅10,箍筋∅6@200),与结构板一同现浇。

3、结构实测实量样板
平整度检测:按照45度角斜放靠尺,累计检测2次表面平整度,墙长度大于3米时,还需在墙长中部水平放靠尺检测1次表面平整度。
垂直度检测:按照以下原则检测2次:一是靠尺顶端接触到下部地面位置时测1次垂直度,二是靠尺底端接触到下部地面位置时测1次垂直度,墙长大于3m时,还需在墙体长度中间位置靠尺基本在墙体高度方向居中时测1次垂直度。

4、卫生间、厨房混凝土反坎
做法1:厨房、卫生间周边墙体(门洞除外)填充墙体根部须先做高出相邻较高房间结构板面200mm的C20细石混凝土导墙再砌筑上部墙体。

做法2:东侧卫生间西侧墙体南侧导墙支模展示。

5、植筋工程
植筋要求:1)植筋之前测量人员应先放线确定钻孔位置;2)锚固所用钢筋需要做除锈处理,除锈长度大于锚固长度5㎝左右;3)如遇钢筋,不得随意变换钻孔角度,应在相邻位置重新钻孔,由此而产生的废孔灌浆填实;4)钻孔深度≥10d,孔径d+4mm;5)植筋与混凝土边缘距离不宜小于5d。

6、阳角防护
做法:采用成品pvc材质护角,防护高度1.5m,每侧宽度3cm。

7、洞口防护
楼板面边长250mm-500mm的洞口防护:

楼板面边长大于1500mm的洞口防护:

8、其他展示
临边防护:


机电防护:



展示内容
1、芯柱、系梁展示样板
芯柱系梁统一展示在书房门入口,系梁宽度范围内以上不砌筑,下部留出1—2皮转不砌。

2、过梁支模样板
底部支撑采用碗扣架,木板固定采用步步紧,间距500mm,不使用对拉螺栓。

3、窗台压顶样板
窗台须设100厚同墙宽的C20细石砼压顶,压顶通长设置,配筋2C12;A6@200或设置U形梁。

4、抱框柱样板
外窗洞口两侧设置抱框,厚度100mm,配置2C12,拉钩A6@200,间距500mm与墙锚固。

抱框柱模板

抱框柱植筋
5、烟风道封堵样板
1)烟道口四周上做100mm宽、150mm高钢筋混凝土反坎(上下各2∅10,箍筋∅6@200),与结构板一同现浇;2)烟道后墙体8mm厚1:2.5防水砂浆抹灰打底;3)烟风道安装;4)C20细石混凝土(掺12%UEA膨胀剂)分两次堵塞缝隙。

6、机电线盒暗槽样板
1)深化结构与机电图纸,进行BM连锁砌块与穿线管道、开关、电箱等相对位置的排布,在砖砌筑之前先按深化图打孔或切割,避免后期剃凿破坏墙体;2)由下至上的线管,砌筑时将砌块套入;由上至下的线管,砌筑时将砌块侧面开槽,将管线套入砌块中。


7、二次结构实测实量样板
平整度检测:1)当墙面长度小于3米,各墙面顶部和根部4个角中,任取2个角。按45度角斜放靠尺分别测量2次;2)当墙面长度大于3米时,还需在墙长度中间位置增加1次水平测量;3)墙面有门窗、过道洞口的,在各洞口45度斜交叉各测一次,作为新增实测指标合格率的1个计算点。
垂直度检测:1)当墙长度小于3米时,同一面墙距两侧阴阳角30cm位置,分别按以下原则实测2次:一是靠尺顶端接触到上部砌体位置时测1次垂直度,二是靠尺底端距离下部地面位置30cm时测1次垂直度;2)当墙长度大于3米时,同一面墙距两端头竖向阴阳角30cm和墙体中间位置,分别按以下原则实测3次:一是靠尺顶端接触到上部砌体位置时测1次垂直度,二是靠尺底端距离下部地面位置30cm时测次垂直度,三是在墙长度中间位置靠尺基本在高度方向居中时测1次垂直度。



展示内容
1、冲筋灰饼
室内粗装修底层于面层石膏找平前墙面须做灰饼及冲筋处理,冲筋间距1200mm,冲进两端距离结构顶面及地面各300mm,冲筋宽度3cm,灰饼宽度5cm。

2、客厅墙面
样板展示墙分层展示,每层做法展示宽度300—500cm,垂直高度1.6m,1.6m以上按照45°角折角置顶。

3、客厅地面
地暖配合样板区地暖施工,楼面施工工艺样板展示层每隔300mm做一层,剖层角度45°。
客厅、餐厅、卧室等户内房间楼面做法:1)钢筋混凝土结构板;2)地采暖层;3)50mm厚C20细石砼面层(内铺∅1.6mmx100x100钢丝网);4)预留40mm业主装修层。

4、卫生间墙面
卫生间墙面做法:1)基层墙体;2)12mm1:3水泥砂浆打底;3)1.8m高防水层;4)8mm厚1:2.5水泥砂浆罩面拉毛;5)水泥浆粘贴瓷砖。

5、卫生间地面
厨房卫生间地面分层做法,水电配合地漏、防水套管的安装,每隔200mm做一层,剖层角度45°。
卫生间地面做法:1)钢筋混凝土楼板;2)20厚1:2.5水泥砂浆找平层;3)1.5mm厚JSII型防水层(上翻至建筑完成面以上1800mm);4)地采暖层;5)50mm厚C20细石混凝土面层;6)回填层及防滑面砖饰面层业主自理。

6、厨房墙面
做法:1)基层墙体;2)12mm1:3水泥砂浆打底;3)8mm厚1:2.5水泥砂浆罩面拉毛。

7、顶棚
顶棚样板分层展示,每隔500mm做一层,剖层角度45°。
顶棚做法:1)基层处理(局部打点,找补);2)一遍腻子;3)二遍腻子(厨房、卫生间采用1遍腻子,四周墙面下返100mm)。


交房展示
1、门窗

2、地面

3、墙面

4、管道安装

5、开关插座


展示区标示标牌
1、分部分项工程施工控制要点及质量标准
采用KT板制作,尺寸600mm*900mm,内容包括混凝土结构工程、砌筑工程、装饰装修工程、防水工程、建筑地面工程、给排水工程、电气工程控制要点及施工标准等。


2、施工工艺及节点做法示意牌
采用KT板制作,尺寸600mm*900mm,内容包括穿墙螺栓封堵工艺、BM砌块施工工艺、钢筋植筋工艺、卫生间防水工艺、地暖施工工艺、外窗施工节点、BM砌块芯柱及过梁节点、地面施工节点示意图等。


3、标识牌
PVC板尺寸100mmx300mm:


4、自贴标识
尺寸:100mmx300mm:


鉴于各个工程所采用的施工工艺有所差异,样板间项目的布置肯定不是千篇一律的,本工程是抛砖引玉,为大家提供思路上的参考和帮助,各项目应结合自身工程特点,选取本工程的重点难点工艺进行布置。
以上内容来源于网络收集整理,如有侵权请联系客服