文章来源:询匠
装配式建筑



装配式项目越来越多了,如何利用软件中的装配式模块快速准确的建模呢?


一、预制墙识图
本项目中的预制墙相对比较简单,不带保温,不带企口,带连梁及洞口的常规矩形预制墙。


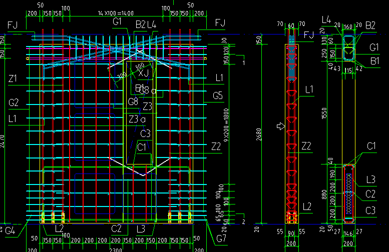
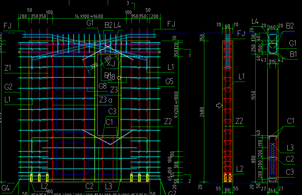
墙平面图中B3-YWQ5为预制墙的编号,然后在预制构件深化图中找到对应编号的预制墙深化图。

从预制墙构件加工图中通过俯视、正立面、左视图等不同角度观察墙是否为带企口的异形墙,是否为带洞口的墙,是否带内外叶板的墙,并识别出预制段高度,坐浆高度等信息。



二、预制墙建模
1、新建预制墙,选择“矩形墙”。
2、输入预制墙属性,本案例中预制墙厚度为200,坐浆高度如图所示为20,预制段高度如图所示为2680,现浇段高度软件通过墙高-预制高度-坐浆高度反算,不用手工输入。


3、预制钢筋的处理。如果需要计算预制钢筋,可以在预制构件属性的【预制钢筋】属性中识别预制构件钢筋明细表。

框选图纸中的钢筋明细表,点击“识别”即可。




三、预制墙上连梁如何建模
以本项目的LL5为例,连梁配筋见连梁表。连梁表中的截面信息、上部纵筋、下部纵筋、侧面纵筋、箍筋、交叉配筋是否都按连梁表中输入呢?具体需要与预制墙构件加工图结合起来看。


从预制墙剖面图中可以看出墙中已经预制了连梁的交叉筋、箍筋、腰筋、拉筋、下部纵筋,并配合看墙的钢筋明细表,发现预制墙中已经给出了连梁的上述钢筋,即定义连梁时只定义面筋即可。


软件中定义连梁时可以按识别到的连梁信息定义,不用手工删除不需要的钢筋及修改连梁高度,连梁的混凝土、模型、钢筋均会扣减预制构件。




四、预制墙竖向现浇带如何建模
如图所示的AHJ1、AHJ2为连接预制墙的竖向现浇带,软件中暗柱绘制即可。


但要注意,识别暗柱后需要将拉筋删除掉,预制墙的出筋已经可以勾住暗柱纵筋了。



预制墙的建模暂时介绍这么多,
关注询匠,了解更多装配式构件建模技巧。

END
询匠服务热线
土建项目经理:17310453262
安装项目经理:15321087807
发项目链接

以上内容来源于网络收集整理,如有侵权请联系客服