文章来源:筑龙路桥市政
整理:筑龙岩土
重力式挡土墙
重力式挡土墙,指的是依靠墙身自重抵抗土体侧压力的挡土墙。重力式挡土墙可用块石、片石、混凝土预制块作为砌体,或采用片石混凝土、混凝土进行整体浇筑。
半重力式挡土墙可采用混凝土或少筋混凝土浇筑。重力式挡土墙可用石砌或混凝土建成,一般都做成简单的梯形。
它的优点是就地取材,施工方便,经济效果好。所以,重力式挡土墙在我国铁路、公路、水利、港湾、矿山等工程中得到广泛的应用。
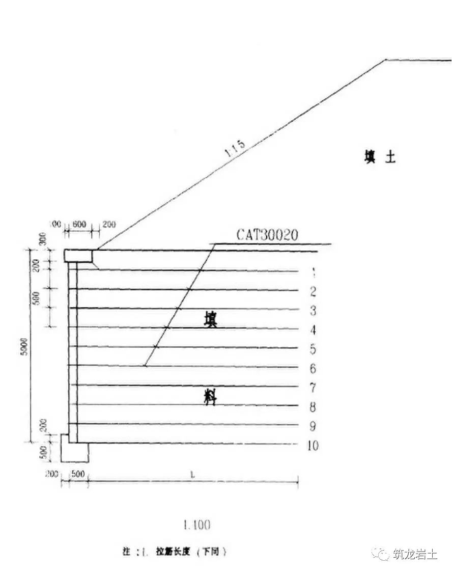
重力式挡土墙可根据其墙背的坡度分为仰斜、俯斜、直立三种类型。
1.按土压力理论,仰斜墙背的主动土压力最小,而俯斜墙背的主动土压力最大,垂直墙背位于两者之间。
2.如挡土墙修建时需要开挖,因仰斜墙背可与开挖的临时边坡相结合,而俯斜墙背后需要回填土,因此,对于支挡挖方工程的边坡,以仰斜墙背为好。反之,如果是填方工程,则宜用俯斜墙背或垂直墙背,以便填土易夯实。在个别情况下,为减小土压力,采用仰斜墙也是可行的,但应注意墙背附近的回填土质量。
3.当墙前原有地形比较平坦,用仰斜墙比较合理;若原有地形较陡,用仰斜墙会使墙身增高很多,此时宜采用垂直墙或俯斜墙。
重力式挡土墙三种形式的图片

重力式挡土墙的施工流程图

重力式挡土墙与一般挡土墙的区别
支挡土的侧压力的构筑物或构件称挡土墙,重力式挡土墙,是依靠其自己的重量来抵挡土的侧压力而保持自身的稳定,平衡。
不是依靠其自身重量来抵挡土的侧压力而保持自身的稳定,平衡。就不是重力式挡土墙了。一般挡土墙中包括重力式挡土墙,等其它墙形。
材料上:绝大多数为毛石浆砌或干砌的。也有用毛石混凝土浇筑的。
重力式挡土墙适用条件
适用于一般地区、浸水地区和地震地区的路肩、路堤和路堑等支挡工程。墙高不宜超过12m,干砌挡土墙的高度不宜超过6m。高速公路、一级公路不应采用干砌挡土墙。
重力式挡土墙基础施工要求
①应将基底表面风化、松软土石清除;
②硬质岩石基坑中的基础,宜满坑砌筑;
③雨季在土质或易风化软质岩石基坑中砌筑基础时,应在基坑开挖好后及时封闭坑底。当基底设有向内倾斜和稳定横坡时,应采取临时排水措施,辅以必要座浆后安砌基础;
④采用台阶式基础时,台阶与墙体应连在一起同时砌筑,基底及墙趾台阶转折处不得砌成垂直通缝,砌体与台阶壁间的缝隙砂浆应饱满;
⑤基坑应随砌筑分层回填夯实,并在表面留3%的向外斜坡。
悬臂式挡土墙
由底板及固定在底板上的悬臂式直墙构成的主要靠底板上的填土重量维持稳定的挡土墙,主要由立壁、趾板、踵板三个钢筋混凝土悬臂构件组成。

悬臂式挡土墙的施工流程图

一、测量放样
先测量放线,定出开挖中线及边线,起点及终点,设立桩标,注明高程及开挖深度。

二、开挖基坑
基坑开挖应保持良好的排水,基坑外设置集水坑,以利于基底排水。
基坑开挖后应检验基底承载力,合格后,妥善修整,在最短的时间内复测。

三、基坑监测
基坑监测是指在施工及使用期限内,对建筑基坑及周边环境实施的检查、监控工作。基坑监测主要包括:支护结构、相关自然环境、施工工况、地下水状况、基坑底部及周围土体、周围建(构)筑物、周围地下管线及地下设施、周围重要的道路、其他应监测的对象。

四、钢筋制安
钢筋的制作。使用抽检合格的产品,按照设计给定的规格、形状及数量,进行钢筋的放样和加工。钢筋制作完成并经检验合格后,方可送往现场安装。
钢筋安装。将制作好的钢筋,按照设计图纸给定的钢筋规格、型号、间距进行钢筋安装。安装中,钢筋的接长采用绑扎连接或双面焊接方式。钢筋连接接头按设计及规范要求错开设置,钢筋的搭接长度和钢筋的锚固长度需满足设计及规范要求。

五、模板及脚手架
挡墙模板采用覆膜胶合板。由于挡墙墙身较薄,为了使模板稳定不变形,采用外撑内拉的方式进行模板加固。
为防止漏浆,在拉杆上设橡胶止水片。
为防止模板拼逢不严漏浆,在模板接缝处,采用双面贴胶带进行嵌缝。模板使用前必须清理干净,并涂刷脱模剂。模板安装完成并支撑牢固后,报请监理工程师进行隐蔽验收。

六、浇筑混凝土
砼均采用商品泵送砼,砼所需各类原材料,经检验、报验后方可使用。到现场的商品砼,采用拖泵或汽车泵输送至浇筑点。施工时必须保证道路通行条件。
砼浇筑时分层浇筑振捣密实,每次浇筑高度不宜超过400mm,对分层部位及分阶段浇注部位加强振捣措施,以保证砼密实。
砼分次浇筑时,应在浇筑前对相邻段已施工砼界面进行处理,将表面凿毛,清扫干净,洒水润湿。
砼采用间隔浇注,每段挡墙间采用2cm泡沫板隔开,以保证沉降缝的留设宽度及顺直度。在设置泡沫板前,需将已浇筑砼侧面修整,再将泡沫板粘贴在墙体侧面。
派专人严格验收进入现场的商品砼质量,对不合格的商品砼,令其撤出现场。
每次浇筑前,应准确计算砼的浇筑量,以减少砼的浪费或形成不规则施工冷缝。
七、混凝土的养护、拆摸
砼拆模后,应及时派专人浇水养护,发现砼表面干燥时,及时浇水,七天后视气候条件可将间隔时间适当延长,养护总天数不少于14天。在进行大体积砼养护时,如遇异常天气(即气温较低,室外温度与砼内部温差≥25℃)应采取必要的保温养护措施。
八、回填
当墙体混凝土达到设计强度的75%时开始进行回填。
墙背回填填料优选粗粒土、砂粒土或砂卵石,分层摊铺、分层碾压、分层检测,密实度满足路基要求。
回填至泄水孔预埋标高处时,对预埋泄水孔清孔,按设计敷设弹塑性透水管。透水管接入排水系统。

九、沉降缝与伸缩缝
为避免因地基不均匀沉陷引起墙身开裂,需根据地质条件的变异和墙高,墙身断面的变化情况设置沉降缝。
为了防止砌体因温度变化和收缩硬化而产生裂缝,应设置伸缩缝。


扶壁式挡土墙
扶壁式挡土墙指的是沿悬臂式挡土墙的立臂,每隔一定距离加一道扶壁,将立壁与踵板连接起来的挡土墙。


扶壁式挡土墙是一种钢筋混凝土薄壁式挡土墙,其主要特点是构造简单、施工方便,墙身断面较小,自身质量轻,可以较好的发挥材料的强度性能,能适应承载力较低的地基。适用于缺乏石料及地震地区。
扶壁式挡土墙是路肩挡土墙的一种,是将预制的挡墙板焊接在预埋于基础混凝土中的钢板上,然后在其内倒填土的一种挡墙形式与其它几种形式的挡墙比较,扶壁式挡土墙具有节省占地空间、缩短施工工期、美化城市环境、较易施工等优点,是城市公路工程立交桥引道中常用的一种挡墙形式。
施工工艺过程
施工准备
施工前对挡土墙下CFG桩的桩头进行截除,截除后的桩顶标高应符合设计要求,清理桩头并报检测单位进行检测。检测合格后,先将0.2m厚的碎石褥垫层夯实整平后,再浇筑0.1m厚的C15素混凝土垫层,扶壁式挡墙的基础施工提供作业面。
测量放样
根据施工图划分施工段,测定挡土墙墙趾处路基中心线及基础主轴线、墙顶轴线、挡土墙起讫点和横断面,注明高程及开挖深度。每根轴线均应在基线两端延长线上设4个桩点,并分别以混凝土包封保护;放测桩位时,应测定中心桩及挡土墙的基础地面高程,临时水准点应设置在施工干扰区域之外,测量结果应符合精度要求并与相邻路段水准点相闭合
基础施工
测量放线确定基础尺寸后进行钢筋绑扎、立模,同时预埋墙面板钢筋和扶壁钢筋。基础钢筋的绑扎要注意钢筋的保护层厚度,垫块采用和基础同强度的混凝土垫块,以保证混凝土的质量。挡土墙基础的施工可以按三个标准单元节同时浇筑混凝土,为挡墙的墙面板施工提供较多的作业面。混凝土由罐车从集中拌合站运至现场,经泵送料入模,采用插入式振捣棒振捣,不得过振及漏振。
墙面板和扶壁施工
首先绑扎墙面板钢筋和扶壁钢筋,钢筋安装完经监理检查合格后,开始灌模,施工中需特别注意模板的垂直度和平整度。在钢筋混凝土与模板间设置垫块,垫块与钢筋扎紧,垫块应采用细石混凝土制作,保证垫块的强度与混凝土结构的强度相同。垫块的安装应该保证钢筋的保护层厚度符合设计要求,同时要保证4个/m2。在混凝土施工过程中要经常检查垫块的位置是否准确。
泄水孔施工
泄水孔按梅花形交错布置,间隔一定距离,采用<50mmPVC管,并用透水土工布包裹PVC管,泄水孔的横坡为4%,在安装时,可通过钢筋对PVC管进行固定,对于墙面板方向的泄水孔,要使PVC管与正面模板接触紧密,PVC管的端面要形成相应的斜面,保证在浇筑混凝土的过程中PVC管周围不会漏浆,使面板光滑、平整。
混凝土养护
混凝土灌注完毕后,安排专人在初凝前进行混凝土收面,待混凝土终凝前再进行一次收面压光处理,然后再覆盖土工布进行洒水保湿养生。当气候炎热时或有风时,2h~3h后即可浇水以维持充分的润湿状态。在潮湿气候条件下,空气相对湿度大于60%时,使用普通水泥时,湿润养护时间不少于7d。
模板拆除
模板的拆除期限应根据结构物特点、模板部位和混凝土所达到的强度来决定。墙面板和扶壁的侧模板属非承重模板,应在混凝土强度能保证其表面及棱角不受损伤时才能拆除,一般应在混凝土抗压强度达到2.5MPa时方可拆除侧模板。
墙背填土
背回填应该在挡土墙混凝土的强度达到设计强度的70%才能够进行填土
使用范围
它适用于缺乏石料的地区。
由于墙踵板的施工条件,一般用于填方路段做路肩墙或路堤墙使用。悬臂式挡土墙高度不宜大于6m,当墙高大于4m时,宜在墙面板前加肋。扶壁式挡土墙宜整体灌注,也可采用拼装,但拼装式扶壁挡土墙不宜在地质不良地段和地震烈度大于或等于八度的地区使用。
桩板式挡土墙
桩板式挡土墙由于抗滑桩和挡土板组合而成,抗滑桩锚入地下,其截面为矩形或圆形,部分伸出地表其截面形式为T形,挡土板可以做成预制平板、拱板或现浇板。

构造要求
桩板式挡土墙中所采用的桩应就地整体灌筑,混凝土强度等级不得低于C20。钢筋视实际情况,选用(1~Iv)级或5号钢筋。
桩的受力钢筋应沿桩长方向通长布置,直径不宜小于12mm。桩的钢筋保护层净距不小于3cm(一般采用5em)。
既可采用挖孔桩,也可采用钻孔桩。挖孔桩宜为矩形截面,高宽比h/b≤1.5;钻孔桩一般为圆形截面,桩的直径0或宽度(顺墙长方向)6不得1.0m—1.25m。嵌入基岩风化层底面以下不得小于1.5倍桩径(或桩宽),但也不宜大于5倍桩径(或桩宽)。为了计算方便,可先按经验初拟埋深,一般岩石地基取桩长的1/3,土质地基取桩长的1/2,然后根据经验适当调整。


桩柱式挡土墙适用于一般地区的土质填方边坡,以及需要直立削坡的土质挖方边坡,其悬臂长度可达15m左右,桩间距一般为3m~6m,抗滑桩的施工要求同人工挖孔灌注桩,桩顶可设置通长冠梁,其上可预埋钢板设置防护栏杆。
预制填土板一般用于填方边坡;现浇挡土板一般用于直立削坡的挖方边坡。

施工注意事项
桩体应跳桩分节开挖,禁止在桩顶上方堆放弃渣及建筑材料;
挡土板可以现浇也可以预制;
在桩板墙施工范围外设5个钢筋混凝土观测桩,对桩板墙进行定位观测;
桩板墙施工时应加强对既有铁路的检测,发现问题应及时回填基坑。



质量控制
锚固桩定位采用全站仪放样,桩身断面尺寸、中心位置、孔径高程、护壁厚度必须符合设计和规范要求;
锚固桩开挖及衬砌立模,均应从口吊线,以及止超欠挖及偏斜。主筋搭接应避开岩土分界处;
预埋连筋的位置须正确无误;
挡土板施工时,必须挂线作业,保证所有挡土板在同一平面上,且垂直度符合要求。

挡土墙工程图
1、挡土墙正面图

2、挡土墙横断面图

柱板式挡土墙
指的是由立柱、挡板、腰梁、腰板、基座和拉杆组成,借助腰板上部填土的重力平衡土体侧压力的挡土墙。

锚定式挡土墙
锚定式挡土墙属于轻型挡土墙,通常包括锚杆式和锚定板式两种。
锚杆式挡墙主要由预制的钢筋混凝土立柱和挡土板构成墙面、与水平或倾斜的钢锚杆联合作用支挡土体,主要是靠埋置岩土中的锚杆的抗拉力拉住立柱保证土体稳定的。
锚定板式则将锚杆换为拉杆,在其土中的末端连上锚定板。它不适于路堑,路堤施工容易实现

锚定式挡土墙的图片

加筋土挡土墙
加筋土挡土墙、指的是由填土、拉带和镶面砌块组成的加筋土承受土体侧压力的挡土墙。
加筋土挡土墙是在土中加入拉筋,利用拉筋与土之间的摩擦作用,改善土体的变形条件和提高土体的工程特性,从而达到稳定土体的目的。加筋土挡土墙由填料、在填料中布置的拉筋以及墙面板三部分组成。一般应用于地形较为平坦且宽敞的填方路段上,在挖方路段或地形陡峭的山坡,由于不利于布置拉筋,一般不宜使用。
加筋土是柔性结构物,能够适应地基轻微的变形,填土引起的地基变形对加筋土挡土墙的稳定性影响比对其他结构物小,地基的处理也较简便;它是一种很好的抗震结构物;节约占地,造型美观;造价比较低,具有良好的经济效益。

加筋土挡土墙施工简便、快速,并且节省劳力和缩短工期,一般包括下列工序:基槽(坑)开挖、地基处理、排水设施、基础浇(砌)筑、构件预制与安装、筋带铺设、填料填筑与压实、墙顶封闭等,其中现场墙面板拼装、筋带铺设、填料填筑与压实等工序是交叉进行的。



施工要求
1 、加筋土挡土墙基坑开挖时,应做好基坑及地面排水,确保施工范围内无积水。严禁积水浸泡基底。
2 、墙面板在运输、吊装及存放过程中应有可靠的防止面板断裂、保护企口不受损坏的措施。
3 、墙面板安装时,应按不同填料和拉筋预设仰斜坡,板面应适当后倾,确保填土后墙面板垂直度符合设计要求,不得前倾。
4、 拉筋进场后应妥善保管,尤其是复合土工带、土工格栅、编织土工袋等土工合成材料,严禁暴晒。施工过程中,应随铺设随填筑,尽量减少拉筋在阳光下直接暴晒的时间。
5 、帽石分段应与墙身一致。
6、 组合式墙面板钢筋骨架形式、钢筋连接方式应符合《高速铁路混凝土与砌体工程施工质量验收标准》的有关规定。墙面板预埋拉筋连接件形式、与钢筋连接方式、外露宽度应符合设计要求。
7、 包裹式加筋挡土墙整体式护墙钢筋骨架形式、钢筋连接方式以及与包裹墙体锚杆连接方式应按《高速铁路混凝土与砌体工程施工质量验收标准》的有关规定检验。
8、 包裹式加筋挡土墙整体护墙、组合式墙面板、帽石的混凝土强度等级应符合设计要求。
9 、墙后反滤层袋装砂卵砾石层、透水土工布、反滤层最低处隔水层的设置位置、构造尺寸及厚度应符合设计要求。
10 、拉筋应铺设在平整压实的填料上。严禁施工机械在未覆盖填料的筋材上行走。
11 、金属拉筋及拉筋与组合式墙面板、锚杆与护墙预埋钢筋的连接应符合设计要求,并应按设计要求做好防锈、防腐蚀处理。








以上内容来源于网络收集整理,如有侵权请联系客服