文章来源:建筑工程鲁班联盟
铝模免抹灰工艺,由于省去了混凝土结构抹灰这一环节,对我们结构成型有较高要求,需对主体及装修阶段容易出现的一些质量通病进行防治。碧桂园工程管理中心结合工程案例,对较为普遍的27个质量通病原因进行分析,提出防治措施,有助于提升免抹灰工艺成型效果,值得工程朋友们参考实施。

铝模免抹灰施工应做到事前控制,对本文提到的包括结构及装修两个阶段共27个质量通病提前采取防治措施,对出现的质量问题,进行原因分析,提出解决方案,并形成文本输出及时对班组进行技术交底,杜绝后续施工出现同样问题。

免抹灰结构阶段质量通病防治
通病 01 沉箱吊模反坎偏位
➤ 原因分析
吊模、反坎定位加固措施不足。
沉箱吊模偏位 卫生间反坎偏位

➤ 解决措施
采用EA角铝拉结等优化加固措施,螺杆采用三段式止水螺杆加固定位。
沉箱加固示意图 三段式螺杆定位加固 通病 02 上下层结构间出现错台

➤ 原因分析
在外墙、楼梯等部位,混凝土错台现象较为严重,严重影响到免抹灰成型效果。
外墙剪力墙错台 楼梯间墙体错位

➤ 解决措施
1、应严格按照深化设计的图集要求设置外墙K板、楼梯间K板、沉箱K板。
2、K板应独立固定于结构上,在拆除下部墙面板时候禁止扰动上部K板。
3、楼梯间上端必须使用EA角铁拉结模板,防止偏位。
外墙K板安装 EA角铁拉结模板 通病 03 下挂梁偏位

➤ 原因分析
下挂梁侧面无可靠支撑,浇筑时偏心受力导致偏位。
下挂梁偏位

➤ 解决措施
采用EA角铝螺栓连接下挂梁底部和楼面板的方式对下挂梁进行对拉斜撑加固。
下挂梁斜撑加固 通病 04 下挂梁深化不到位致使交接处抹灰开裂

➤ 原因分析
1、下挂梁企口未深化。
2、下挂梁支座长度不足。
下挂梁未留置抹灰企口 砌体与混凝土交接处开裂

➤ 解决措施
1、下挂梁两端延伸150mm。
2、离墙端不大于600时拉通下挂梁。
3、下挂梁与砌筑交接处设置150宽的企口。
门头梁下挂示意图 下挂梁两端延伸150mm 通病 05 飘窗变形

➤ 原因分析
飘窗部位由于难以浇捣,在施工过程中,需要振动棒的长时间振捣才能保证飘窗部位的混凝土密实,致使飘窗面板往往受力较大,如果没有有效的加固措施,飘窗面板将出现严重胀模,进而导致飘窗顶板起拱。
飘窗上板起拱 飘窗台胀模

➤ 解决措施
1、模板内侧设置K板,上盖板设置钢背楞,增加抗浮能力,下模板与浇筑成型的飘窗板对撑。
2、飘窗模板沿短边方向配模,沿长边方向设置背楞,通过对拉螺栓将上盖板与下层浇筑成型的飘窗板拉结。
3、飘窗矮墙横向钢背楞与两端墙体拉通,设置@800的对拉螺杆防止胀模。
4、盖板上@600设置一个透气孔。
5、飘窗@1200设置竖向支撑,每个支撑头至少设置2根支撑立杆。
飘窗上下板拉撑体系 飘窗盖板抗浮背楞 飘窗上下板拉撑体系 飘窗盖板抗浮背楞 通病 06 楼梯企口漏设、尖角拆模困难



➤ 原因分析
1、图纸深化时楼梯未按要求设置抹灰企口,上下为砌筑墙体时无法挂网抹灰。
2、梯梁与梯板阴角未填平处理,影响铝模拆除和楼梯成型观感质量。
楼梯企口漏设 梯板与梯梁交接尖角不利于施工

➤ 解决措施
1、梯梁应按照铝模深化要求进行压槽预留企口。
2、铝模深化设计时将梯梁与梯板尖角填平接通处理。
楼梯上下均设置企口 楼板与梯梁交接尖角填平 通病 07 抹灰企口漏设,无法收口

➤ 原因分析
铝模深化设计时未对混泥土结构抹灰企口进行深化,导致无法抹灰收口。
墙体未设置抹灰企口 下挂梁未设置抹灰企口

➤ 解决措施
1、铝模深化设计时参照建筑图对抹灰企口深化。
2、预拼装验收及首层拆模后对企口全数检查整改。
设置抹灰企口 抹灰完成效果 通病 08 砌体规格不匹配致使免抹灰失败

➤ 原因分析
1、企口规格留置错误。
2、砌体尺寸未深化。
常规抹灰企口宽度不足15cm 砌体规格未按结构企口深度优化

➤ 解决措施
1、按要求设置企口,其中常规抹灰企口为150mmX10mm,专用砂浆薄抹灰企口为100mmX8mm,预制墙板免抹灰企口为50mmX5mm。
2、砌体规格结合抹灰工艺提前确定尺寸,提前采购备料。
常规抹灰企口节点大样 企口厚度=墙体厚度-抹灰厚度 通病 09 窗洞企口或窗垛漏设,无法收口

➤ 原因分析
铝模深化设计时未对窗企口和窗垛进行深化,导致无法收口或保温层吃框。
未设置企口至抹灰压框收口开裂 外窗无窗垛,致使保温材料吃框

➤ 解决措施
1、铝模深化设计时参照深化图集对各类窗型进行抹灰企口深化。
2、外飘窗应对两侧进行窗垛优化,避免保温层吃框。
深化窗企口 深化外窗窗垛 通病 10 窗企口深化尺寸错误

➤ 原因分析
1、企口尺寸未结合铝窗型材厚度调整,企口宽度过小致使窗框挡住滴水线。
2、企口宽度留设过大,窗框安装完成后,抹灰塞缝空间过大。
防火窗企口宽度不足 企口留设过大,塞缝空间较大

➤ 解决措施
在深化时针对不同型材厚度设置不同的企口宽度(50型材企口宽125;90型材企口宽150;100防火窗企口宽165)。
防火窗企口深化图 严格按照要求进行深化 通病 11 滴水线安装错误

➤ 原因分析
1、滴水线安装错位。
2、早拆头处没有安装滴水线,或者施工的时候错用无滴水线的早拆头。
滴水线安装错位 早拆头无滴水线

➤ 解决措施
1、试拼时重点检查窗洞模板、企口、滴水线是否齐全、顺直(外墙滴水线距饰面层2cm断开)。
2、做好企口、滴水线的铝模板编码,严格按照编码拼装。
加强预拼装验收管控 根据编码进行现场安装 通病 12 给水管压槽漏设或偏位变形

➤ 原因分析
1、铝模预拼装验收时未结合水电全面排查,漏设给水管压槽,后期打凿开槽,影响免抹灰效果。
2、给水管压槽未采用刚性材料一次压制成型,混凝土浇筑时偏位变形。
给水管压槽漏设,人工开凿 给水管安装槽偏位、变形

➤ 解决措施
1、预拼装验收和首层评估时全面校核水电,发现问题及时整改。
2、采用刚性一次压制成型材料,固定于铝模板上。
给水压槽设计 压槽一次成型 通病 13 水电点位偏位

➤ 原因分析
1、线盒外部没有可靠的固定措施,混凝土浇筑时偏位。
2、线盒内部无填充加固,混凝土浇筑时受挤压变形。
线盒偏位 线盒加固不到位

➤ 解决措施
1、制作井字型固定框架,线盒固定于框架内,框架满绑满扎或焊接于墙体钢筋上,固定牢固。
2、线盒内部使用填充物(如锯末)填充密实并压紧密封,多个线盒并行时应采用整体联排线盒。
线盒可靠固定 联排线盒内部填充锯末并压实 通病 14 墙体方正性控制较差,致使混凝土砌体交接处出现错台

➤ 原因分析
1、墙柱模板安装时与定位线偏差较大。
2、墙柱安装时未进行模板初调,后期校调难度大。
墙柱安装偏位 抹灰错台

➤ 解决措施
1、严格按照定位线进行安装,同时在梁板安装前进行初调并完成背楞、斜撑的加固。
2、在布设灰饼时应结合整面墙体(砌筑+剪力墙)的情况,进行墙体方正性进行微调。
加强初调检查 墙体方正性整体调校 通病 15 阴角不方正

➤ 原因分析
阴角加固方式错误。
阴角不方正 阴角加固方式错误

➤ 解决措施
1、转角墙长≤500设置定型转角背楞。
2、斜撑距墙端距离不大于600。
3、阳角采用草字头定位筋,阴角离墙角100设置定位筋,离地高度50~80。
阴角加固深化设计 背楞连续加固、斜撑满布 通病 16 门洞尺寸偏差

➤ 原因分析
门洞胀模导致铝合金门无法安装。
门洞胀模 铝合金门无法安装

➤ 解决措施
1、门洞口端头采用定型背楞加固,或采用阳角锁对拉。
2、浇筑过程中专人护模,专人实测,专人调模,发现问题及时整改,避免成型后打凿影响免抹效果。
沿洞口背楞连续加固 阳角锁对拉 通病 17 墙柱根部漏浆、烂根

➤ 原因分析
1、浇筑混凝土前未对墙柱根部采取有效的封堵措施。
2、采用砂浆、细石混凝土封堵时未达到一定强度即浇筑混凝土,封堵砂浆等破损失去作用。
浇筑时漏浆 成型后烂根

➤ 解决措施
1、浇筑混凝土前,采用可靠措施对墙柱根部进行封堵,防止漏浆,避免后期烂根。
2、混凝土浇筑完成后,墙柱根部300mm范围内人工收平,收平偏差(-5,8mm)。
墙柱根部300mm范围内人工收平 墙柱根部模板封堵 通病 18 混凝土表面起皮、观感差

➤ 原因分析
1、由于安装铝模过程中,模板表面未涂刷脱模剂,导致拆模后砼表面起皮。
2、涂刷脱模剂时未按照要求使用专用水溶性脱模剂,使用油性脱模剂容易污染钢筋,且拆模后砼表面观感较差。
砼表面起皮 油性脱模剂污染钢筋 拆模后观感差


➤ 解决措施
1、每次拆模后马上将模板清理干净,并涂刷水溶性脱模剂。
2、严禁使用油性脱模剂,钢筋上楼前对钢筋进行除锈,防止锈块污染楼面。
水溶性脱模剂原液 涂刷脱模剂 通病 19 梁与楼板交接处开裂

➤ 原因分析
1、模板竖向支撑距离墙边间距过大。
2、拆模时间过早,混凝土未到达一定的强度便拆除顶板,或在楼板上过量施加荷载。
楼板与梁交接处开裂渗漏 楼板开裂渗漏

➤ 解决措施
1、短边方向竖向支撑距离墙边间距必须≤750mm,支撑间距≤1200mm。
2、在强度达到要求后拆模,严禁集中过大加载;施工时竖向模板在12小时后拆模,梁侧模24小时后拆除,梁、板底模在48小时后拆模。
3、拆除模板时不得扰动竖向支撑体系,严禁拆除竖向支撑再回顶。
竖向支撑间距控制 拆除底模混凝土强度标准 通病 20 模板清理不及时致使漏浆、梁垂直度不足

➤ 原因分析
1、墙板拼缝处水泥浆积累过多,致使混凝土墙面拼缝漏浆严重。
2、楼面板拼缝处水泥浆积累过多,致使梁侧空间受积压,使梁截面变小。
墙模板泥浆积累致使拼缝过大 楼面板泥浆积累挤压梁板空间

➤ 解决措施
1、做好对工人的交底工作,并对模板定期进行清理。
2、销钉按要求满打,并严格验收。
定期清理模板 销钉按要求满打 通病 21 螺杆孔洞空鼓、渗漏

➤ 原因分析
1、未采用微膨胀砂浆对螺栓孔洞进行封堵,造成螺杆孔洞内封堵砂浆空鼓开裂,存在渗漏隐患。
2、外墙螺杆孔洞封堵完成后,未及时涂刷防水涂料,留下渗漏隐患。
螺杆孔洞空鼓开裂 螺杆孔洞处渗漏

➤ 解决措施
1、螺杆孔洞内混凝土残渣等清理干净。
2、螺杆孔洞中部先填充100~120mm发泡剂。
3、发泡剂内外两侧用膨胀水泥砂浆封堵密实。
4、外墙侧刷一道聚合物防水涂料。
螺杆孔洞封堵做法 外墙刷防水涂料 通病 22 全现浇外墙窗边开裂

➤ 原因分析
窗洞口边等应力集中部位出现开裂、渗漏。
全现浇外墙窗边开裂

➤ 解决措施
1、设计提资是要求设计院对结构外墙按照全剪力墙进行设计。
2、设计采用非承重外墙时,应设置拉缝板及构造加强措施:交界处剪力墙两侧各加三根直径为Φ8钢筋(45°)。

设置结构拉缝板、设置加强筋
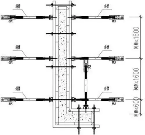
通病 23 悬挑外架穿结构
➤ 原因分析
部分因楼层数限制等原因,采用悬挑脚手架的项目,因传统悬挑脚手架需要穿结构进行悬挑,必须在铝模板上开孔,严重影响结构成型质量,同时对后期砌体及装修构成影响,而大量的预留洞为后期外墙渗漏埋下隐患。
悬挑工字钢穿剪力墙、飘窗 工字钢穿阳台反坎

➤ 解决措施
螺栓连接式悬挑脚手架的应用,则可以很好地解决前述问题。悬挑工字钢采用螺栓连接,避免对于结构的破坏,同时也避免了在铝模上开孔,降低铝模损耗;此外,工字钢没有锚固端,不占用室内空间,减少对后续施工的影响;挑架拆除后仅需完成螺杆洞的封堵,大大减少了外墙渗漏的隐患。
螺杆连接式悬挑架施工简图 螺杆连接式悬挑脚手架施工样板 免抹灰装修阶段质量通病防治

通病 24 墙体反锈
➤ 问题描述
剪力墙部位不抹灰,出现墙体反锈及后续的装修中还持续反锈的情况,严重影响了装修的正常施工,同时对后期的交楼也带了不小风险。
墙体反锈 装修阶段持续反锈

➤ 原因分析
1、在绑扎钢筋时,钢筋扎丝外露。结构墙体混凝土浇筑完成后,由于无抹灰层的覆盖,外露扎丝极易锈蚀,涂刮腻子后出现反锈。
2、钢筋保护层厚度不够,或保护层垫块较少,浇筑过程中局部钢筋外露;钢筋表面浮锈太多,保护层厚度不足时锈渍渗透腻子层造成墙体反锈。
3、采用拉片的铝模体系,拉片材料选用不当,或截断方式不正确,拉片残留在墙体外部,造成墙体出现反锈。
钢筋扎丝外露 钢筋保护层不足 拉片残留


➤ 钢筋扎丝外露解决措施
1、绑扎钢筋前做好技术交底工作,现场强调钢筋绑扎过程中扎丝的内收动作,扎丝固定后尾端朝向墙体内部。
2、加强现场的过程管控和隐蔽验收,对现场外露扎丝及时调整到位。
做好技术交底,钢筋扎丝内收

➤ 钢筋保护层不足解决措施
1、外层钢筋上采用可靠的保护层垫块措施,避免浇筑混凝土过程中,钢筋挤压外露;绑扎钢筋前必须将表面的浮锈清理干净。
2、墙体内采用同墙体混凝土强度的细石混凝土内撑条或高强塑料内撑条等内撑措施保证墙体的截面尺寸。
钢筋保护层垫块实例 墙体内撑条示例

➤ 拉片残留解决措施
1、选用断点内嵌5mm的标准对拉片。
2、采用正确的截断方式,混凝土达到设计强度后,从上往下垂直快速敲击对拉片端头,严禁水平方向敲击。
标准对拉片(断点内嵌) 对拉片无残留

➤ 外露材料处理措施
1、加强刮腻子层基层检查,剔除外露的扎丝,及时涂刷白色防锈漆。
2、刮完第一遍腻子后勿急于刮第二遍腻子(第一遍腻子施工完成后3-7天墙面会出现明显锈点)。
3、及时将锈点腻子剔除干净并清理锈源,涂刷白色防锈漆。
4、刮第二遍腻子后如仍有锈点,重复步骤3进行锈点处理。
5、对暴露在空气中的金属材料,涂刮腻子前必须有可靠的防锈处理措施,如涂覆白色醇酸调合磁漆。
基层外露扎丝剔除 清理锈源 金属材料表面防锈处理 白色醇酸调合磁漆 通病 25 砌体剪力墙交接处空鼓开裂



➤ 问题描述
砌体结构与剪力墙交接处在进入装修阶段后企口部位出现空鼓开裂的现象,切割凿除后修复工作难度大,效果不理想。严重影响装修的正常施工,提高交楼风险。
交接处空鼓开裂

➤ 原因分析
在免抹灰工艺中,剪力墙结构部位免抹灰,砌体结构进行抹灰。剪力墙与砌体交接的企口部位,由于混凝土基层比较光滑,且抹灰厚度通常较薄,该部位又属于受力薄弱部位,直接挂网抹灰后容易出现空鼓开裂的情况。
交接部位受力薄弱 混凝土基层光滑

➤ 解决措施
1、对免抹灰企口进行优化:铝模上抹灰企口压槽宜使用板材一次压制成型。砌体常规抹灰时,企口为150mmX10mm;砌体薄抹灰时,企口为100mmX8mm;采用预制隔墙板时,企口为50mmX5mm。企口留设高度应与抹灰层厚度一致。
2、对剪力墙企口部位用尖锤凿毛。
3、剪力墙企口部位均匀涂抹界面剂。
4、挂网宽度为两倍企口留设宽度,剪力墙上采用高压枪钉射钉金属铁片压住挂网。
5、砌筑墙上采用高压枪钉射U型钉固定挂网。
6、砌体薄抹时使用专用砂浆进行抹灰;砌体常规抹灰时,在交接处应使用专用砂浆抹灰。
砌体与剪力墙交接处企口留设优化示意图 墙面凿毛处理 抹灰前涂刷界面剂 剪力墙钉射铁片砌筑 墙钉射U型钉 专用砂浆抹面 通病 26 腻子起泡






➤ 问题描述
在铝模免抹灰标段中,由于直接在混凝土表面刮腻子,通常会出现大量气泡,造成后期腻子的打磨修补的工作量增加,同时影响装修效果。
腻子直接涂刮剪力墙起泡 腻子表面起泡

➤ 原因分析
对于应用铝模并实现结构免抹灰的项目,其主要原因是混凝土表面孔洞较多,直接刮腻子时,腻子无法将孔洞完全填塞,孔洞内部空气受到挤压,刮刀划过以后迅速反弹形成大量气泡。
混凝土表面起泡 起泡外小内大、气压挤压腻子反弹

➤ 解决措施
1、混凝土浇筑过程中应振捣充分,拆模后混凝土基层面(浮浆、障碍物等)清理干净,对于气泡较多较大的区域应先使用水泥胶进行修补,然后用水泥干粉擦拭修平。
2、第一遍腻子涂刮后应在腻子硬化前、起泡鼓起后(大约涂刮完后20-30min)进行回压。
3、第二遍腻子涂刮完成后,下一道工序前应进行打磨,对局部起泡的地方排查修复。
基层清理 大气泡修补 第一遍腻子回压 第二遍腻子打磨 通病 27 墙砖铺贴空鼓



➤ 问题描述
在铝模免抹灰工艺中,混凝土基层比较光滑。在瓷砖铺贴区域采用常规方法进行铺贴时,瓷砖出现空鼓的情况较多。
瓷砖空鼓 瓷砖脱落

➤ 原因分析
由于铝模为防止板材腐蚀,通常表面会采取镀膜等处理措施,又因为油性脱模剂的不当使用,光滑的混凝土墙面对瓷砖铺贴影响很大。
表面镀膜致使混凝土脱模光滑 混凝土表面光滑

➤ 解决措施
1、铝模表面应使用水溶性脱模剂,不得使用油性脱模剂。
2、截面处理:高压水枪拉毛处理,或者混凝土表面清理干净后均匀涂刷界面剂。
3、墙面为玻化砖的,使用胶泥进行铺贴;非玻化砖的,使用水泥砂浆进行铺贴。
4、专用锯齿刮刀在瓷砖和基层上满刮水泥砂浆(瓷砖胶),注意瓷砖背面胶与墙面的瓷砖胶十字铺贴。
涂刷水性脱模剂 混凝土表面拉毛 瓷砖胶 水泥砂浆刮底 瓷砖胶满涂并拉十字铺贴





以上内容来源于网络收集整理,如有侵权请联系客服