来源:消防工程师备考助手
楼层框架梁纵向钢筋排布规则
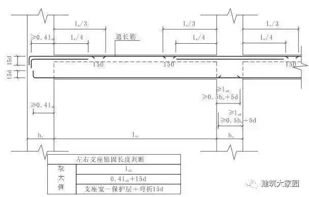
一、二级抗震等级楼层框架梁KL钢筋排布如图所示。
(1)ln为跨度值;ln1为第一跨;ln2为第二跨。
(2)有悬挑端的楼层框架梁,其悬挑部分的钢筋排布见图7.3。
(3)图中hc为柱截面沿框架方向的高度。
(4)laE取值见11G101(现在实行的是16G101图集,但是小编没有去找这图集,一是小编没找到图集找相关的数据,大家需要的话找一下16G101中对应的数据就行,二是16G101图集中也有不少勘误,大家学习一定要注意点。学习这东西都是万变不离其宗,学习方法一定要清楚。)
(5)当梁上部既有通长筋又有架立筋时,其中架立筋的搭接长度为150mm。

楼层框架梁纵向钢筋
屋面框架梁纵向钢筋排布规则
抗震屋面框架梁WKL纵向钢筋排布
(1)laE取值见11G101。
(2)当贯通筋d>28mm时,应采用机械连接或等强对接焊接长;当d≤28mm时,除按图示位置搭接外,当支座上部纵向钢筋与通长筋直径相同时,也可在lni/3范围内采用一次机械连接或对焊连接或绑扎搭接连接。
(3)当梁纵筋采用绑扎搭接接长时,箍筋应加密。
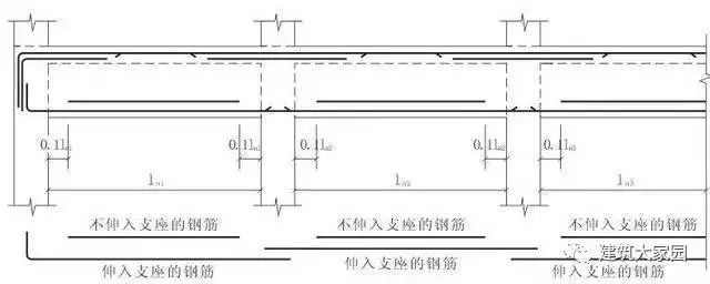
不深入支座的梁下部纵向钢筋排布规则
不深入支座的梁下部纵向钢筋断点位置钢筋排布

注:①本图构造不适用于框支梁。
②深入支座的梁下部纵向钢筋锚固构造见03G101-1P54-59。
中间支座纵向钢筋排布规则
(1)屋面框梁WKL中间支座纵向钢筋排布

(2)框梁KL中间支座纵向钢筋排布如图所示。

注:(1)括号内为非抗震梁纵筋的锚固长度。
(2)当屋面框架梁为抗震梁,楼层框架梁为一至四级抗震等级时,
梁的下部纵筋在中间支座的水平直锚长度,除应满足本图注明者外,还应满足≥0.5 hc+5d。
箍筋、附加箍筋、吊筋等钢筋排布规则
一级抗震等级框架梁KL、WKL箍筋钢筋排布

KL、WKL箍筋钢筋

箍筋起始位置

梁侧面纵向构造筋和拉筋
注:
①hb为梁截面高度,hw为板下梁净高。
②当箍筋为多肢复合箍时,应采用大箍套小箍的形式。
③当hw≥450mm时,在梁的两个侧面应沿高度配置纵向构造筋;纵向构造筋间距a≤200mm。
④梁侧面构造筋和受扭纵筋的搭接与锚固长度见03G1011P24注(1)与注(2)。
⑤当梁宽≤350mm时,拉筋直径为6mm;梁宽>350mm时,拉筋直径为8mm;拉筋间距为非加密区箍筋间距的两倍,当设有多排拉筋时,上下两排拉筋竖向错开设置。
⑥箍筋及拉筋弯钩构造见03G1011P35。
(2)附加吊筋的钢筋排布

配筋排布规则
(1)非框架梁L配筋的钢筋排布

(2)梁侧面纵向构造筋和拉筋的钢筋排布

(3)主次梁斜交箍筋的钢筋排布

注:
①当端支座为柱、剪力墙、框支梁或深梁时,梁端部上部筋取ln/3,ln为相邻左右两跨中跨度较大一跨的跨度值。
②梁端与柱斜交,或与圆柱相交时的箍筋起始位置见03G 1011P63。
③当弧形非框架梁的上部设有抗扭筋,其直径>28mm时,应采用机械连接或焊接接长,其要求见具体工程设计说明;当直径≤28mm时,除按图示位置搭接外,也可在跨中lni/3范围内采用一次搭接接长。
④弧形非框架梁的箍筋间距沿梁凸面线度量。
⑤纵筋在端支座伸至对边后再弯锚。
⑥梁下部肋形钢筋的直锚长度见图注,当为光面钢筋时,直锚长度为15d。
(4)各类梁的悬挑端配筋的钢筋排布

注:
①当纯悬挑梁的纵向钢筋直锚长度≥la且≥0.5hc+5d时,可不必往下弯锚;当直锚伸至对边仍不足la时,则应按图示弯锚;当直锚伸至对边仍不足0.4la时,则应采用较小直径的钢筋。
②当悬臂梁由屋面框架梁延伸出来时,其配筋构造应由设计者补充。
③当梁上部设有第三排钢筋时,其延伸长度应由设计者注明。
④梁下部肋形钢筋锚长为12d;当为光面钢筋时,其锚长为15d。
以上内容来源于网络收集整理,如有侵权请联系客服