施工图识读是所有工程人的必修技能之一,今天就给各位分享一下,在市政管道工程中常见的工程图都应该怎么识读吧。

管道材料
一、基本要求
①具有足够的强度和一定的刚度。
②管道内壁表面光滑,减小水流阻力。
③具有一定的耐腐蚀能力。
④具有足够的密闭性。
⑤易加工,经济。
二、常用管材
1、混凝土管和钢筋混凝土管  
强度高,取材方便;抗酸碱及抗渗性差,接头多,自重大,运输中易破损。
适用于土质不良地段,穿越铁路,道路时。


管口形式:承插,平口,企口。
图片
图片
图片
图片
▲PCCP
图片
▲钢筒混凝土管
图片
▲现浇钢筋混凝土管渠
2、陶土管
上釉后管壁光滑,抗渗,抗腐蚀;易碎,强度低。
适用于排除酸性工业废水或地下水有侵蚀性时。
管口形式:承插,平口。
图片
3、金属管  
强度高,抗渗,管壁光滑,接口少;价格高,易腐蚀。
适用于抗震等级高,地下水位高或承受高压,流砂严重或对渗漏要求特别高的地段。
管口形式:法兰,承插。
常见管材:钢管,铸铁管。
图片
图片
图片
▲铸铁管
4、塑料管道
施工方便,材质轻,内壁光滑;强度较低,刚性差,热胀冷缩大,在日照下易老化。
管口连接:粘接,电熔焊接。
常见管材:UPVC硬聚氯乙烯,PE聚乙烯,PP聚丙烯。
图片
图片
▲塑料管电熔焊接
图片
▲PE管
5、新型管材:HDPE高密度聚乙烯,FRP玻璃钢,玻纤混凝土等
图片
图片
▲FRP管
三、给水管件
1、配件
在管道的转弯,分支,变径及连接其他设备处使用。
如:三通,四通,弯头,异径管(变径管),短管(变接口)等。
图片
2、附件
输配水控制
止回阀:控制水流只朝一个方向流动,防止倒流。
排气阀:排骨管道中的气体,减小水流阻力。
泄水阀:排空管道,清除沉淀物。
消防栓:消防车取水设施。
图片
管道构造
一、基础
包括:地基,基础,管座。
图片
图片
1、砂土基础
弧形素土基础,砂垫层基础。 
适用于土壤条件非常好、无地下水的地区,管道直径小于600mm,管顶覆土厚度在0.7~2.0m之间的管道,不在车行道下的次要管道及临时性管道。

图片


2、混凝土枕基
在管道接口下设混凝土垫块。
适用于土壤条件较好、无地下水的地区,给排水支管。

图片
3、混凝土带形基础
沿管道全长铺设带状水泥混凝土,适用于各种土质,特别是土壤条件差、震区、重要管道等。
按管座的形式,分为90度、135度、180度、360度四种管座基础,根据管道埋置深度选择。
图片
图片
图片
图片
 二、排水管道附属构筑物
 1、检查井

功能:便于对管道衔接以及定期检查和疏通。 

位置:管道交汇,转弯,尺寸或坡度改变处,跌水,相隔一定距离的直线段上。

构造:由井底,井身,井盖组成。

图片
①井底
一般采用低标号混凝土、基础采用碎、卵石或混凝土;
宜设流槽,并使流槽底具有一定坡度,以降低水流阻力,防止淤积;
流槽两侧至井壁间应有不小于20cm的宽度,以便于养护人员下井时立足,即沟肩。
图片
②井身
以砖、石砌筑,也可以钢筋混凝土现浇。
不需要下井的浅检查井,井身为直壁圆筒形;需要下井的其井身在构造上分为井室、渐缩部、井筒三个部分。
井室直径不小于1m,井筒直径不小于0.7m。井室与井筒间以渐缩部连接。也可在井室上加钢筋混凝土盖板,在盖板上砌筑井筒。
图片
③井盖
由井盖和盖座组成,常用采用铸铁、钢筋混凝土等。
为防止雨水流入,盖顶应略高于地面。
图片
2、雨水口  
功能:收集地表径流的雨水,将其引入雨水管道。
位置:道路交叉口,直线上一定距离(25-50m)处,路缘石低洼地。
构造:由基础,井箅,井筒,连接管组成。
图片
三、给水管道附属构筑物
1、阀门井  
功能:安装各种给水管道附件,方便操作和养护。
2、泄水阀井  
功能:排除泄水阀所排放水,由湿井与阀门井相连组成。
3、支墩  
功能:防止管道的承插接口因承受过大的水流推力,而导致接口脱落。
位置:弯管、三通、变径等位置。
图片
管道工程图一般规定
一、标高
标准规定,室外工程应标注绝对标高;无绝对标高时也可标注相对标高。 
压力管应标注管中心标高。 
沟渠和重力管应标注沟(管)内底标高。  
二、管径
公称直径:DN,常用于金属管材。如:铸铁管DN25。
外径:D×δ,常用于不锈钢管、无缝钢管。如:不锈钢管D108×4。
内径:d,常用于混凝土管、陶土管等。如:钢筋混凝土管d300。
平面图
图示内容
表明管道的平面位置,管道直径、长度、坡度,检查井位置、编号,水流方向等。
比例:1:500或1:1000,与道路施工图一致。
方位:坐标网或指北针  
道路平面图:中心线、边线、桩号等  
管线:雨水Y、污水W、给水J,以不同的线型表示。
附属构筑物:图例表示井编号,如W5,5号污水检查井。 
标高:地面标高和管道标高  
管道:直径、长度、坡度、流向。
图片
图片
图片
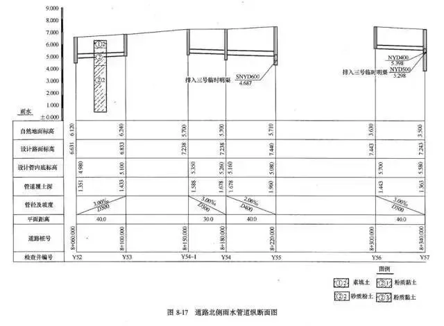
纵断面图
图示内容
表示地面起伏情况,管道敷设深度,管道直径及坡度,与其他管道交接情况。
横向表示长度,竖向表示管径与标高。
图样部分
比例:竖向比例常为横向比例的10倍n线形;粗双线—管道,粗实线—地面,双竖线—检查井。
支管标注:SYD400—方位、代号、管径,即表示由南向接入的直径400mm的雨水管道。
图片
图片
图表部分

图片
图片
构筑物详图
图片
图片
图片
图片
图片
图片

以上内容来源于网络收集整理,如有侵权请联系客服