1
总配电柜或箱
一般来说,施工现场用电应符合下列规定:1、采用三级配电系统(即总配电柜或箱、分配电箱、开关箱);2、采用TN-S接零保护系统;3、采用三级漏电保护系统(即总配电箱漏电保护器、分配箱漏电保护器、开关箱漏电保护器)。下面基于施工现场实例图片,详解三级配电箱的配置,以供大家参考学习。

1
总配电柜或箱
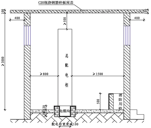
总配电房要求:
6、配电房沿墙周边设置接地等压带。

总配电房设置立面示意图

总配电房设置平面示意图

总配电房设置剖面示意图
总配电柜现场图例详解:

①:电压表
②③④:电流表

①:电度表

①:总断路器保护器
②:总隔离开关
③:分路总隔离开关
④:分路总漏电保护器
总配电箱中的漏电保护器的额定漏电动作电流应大于30mA,额定漏电动作时间应大于0.1s,但其额定漏电动作电流与额定漏电动作时间的乘积不应大于30mA.s。

①:相线涂刷有色油漆,作标志分色
②:设置N线连接端子
③:设置PE线端子

①:电箱门与金属箱体采用编织软铜线做电气连接

①:张贴系统接线图
2
分配电箱
分配电箱要求:
6、分配电箱的漏电开关额定漏电动作电流为100mA,额定动作时间为0.1S。
分配电箱现场图例详解:

分配电箱电器配置示意图

①:总隔离开关
②:分路隔离开关
③:分路漏电保护器
④:N线端子
⑤:电线按相序分色
⑥:采用编织软铜线做电气连接
⑦:PE线端子
⑧:接线端子
⑨:绝缘底板

①:总隔离开关
②:分路隔离开关
③:分路漏电保护器
④:N线端子
⑤:采用编织软铜线做电气连接
⑥:PE线端子
⑦:接线端子
⑧:电线按相序分色
⑨:绝缘底板
⑩:系统图

①:总隔离开关
②:分路隔离开关
③:分路漏电保护器
④:按相序分色
⑤:PE线端子
⑥:工作零线端子
⑦:编制软铜线
⑧:绝缘电工板
⑨:系统图

①:总隔离开关
②:分路隔离开关
③:分路漏电保护器
④:N线端子
⑤:PE线端子
⑥:接线端子
⑦:电线按相序分色
⑧:绝缘底板
临时电箱设置示意:

固定式分配电箱

移动式分配电箱
3
开关箱
开关箱要求:
3、开关箱与控制设备的水平距离距离应在3米内。
开关箱现场图例详解:


开关箱电器配置示意图
双向机具(砂浆机)开关箱

①:隔离开关
②:控制线路开关
③:交流接触器正转
④:交流接触器反转
⑤:电线按相序分色
⑥:漏电保护器
⑦:热继电器
⑧:380V转24V变压器
⑨:PE线端子
⑩:控制指示灯
⑪:控制按纽
⑫:系统图
⑬:编织软铜线保护连接
锯木机开关箱

①:隔离开关
②:漏电保护器
③:380V变24V变压器
④:电线按相序分色
⑤:控制线路开关
⑥:交流接触器
⑦:相序控制
⑧:热继电器控制
⑨:PE线端子
⑩:控制指示灯
⑪:控制按纽
⑫:系统图
⑬:编织软铜线保护连接
普通设备开关箱

①:隔离开关
②:漏电保护器
③:电线按相序分色
④:PE线端子
⑤:接线端子
⑥:系统图
⑦:编织软铜线保护连接
⑧:绝缘底板

①:隔离开关
②:漏电保护器
③:电线按相序分色
④:PE线端子
⑤:接线端子
⑥:系统图
⑦:编织软铜线保护连接
⑧:绝缘底板
交流焊机开关箱

①:隔离开关
②:漏电保护器
③:二次侧空载降压保护器
④:电线按相序分色
⑤:PE线端子
⑥:接线端子
⑦:系统图
⑧:编织软铜线做门跨接线
⑨:绝缘底板
220V开关箱

①:隔离开关
②:漏电保护器
③:插座
④:电线按相序分色
⑤:PE线端子
⑥:系统图
⑦:编织软铜线保护连接
⑧:绝缘底板

①:隔离开关
②:漏电保护器
③:插座
④:电线按相序分色
⑤:PE线端子
⑥:系统图
⑦:编织软铜线保护连接
⑧:绝缘底板
大型设备开关箱漏电开关参数选择

临时电箱设置示意:

固定式开关箱

