管道支架自由臂安装大样图
【室内给排水管道节点图】做法适用于住宅室内给水排水系统工程。注:PP-R长期适用的水温≤70℃,系统工作压力≤0.6Mpa,dn≤100的室内冷热水的安装;铝塑复合管适用长期的水温≤95℃,系统工作压力≤0.6Mpa,dn≤50的室内冷热水的安装;U-PVC管道使用温度,室内连续排水温度不大于40℃,而瞬间排水水温不大于80℃。
水暗装管道沟槽施工大样图
1、埋地管线大样图
说明:在楼板施工时要预留15*60mm(深*宽的管槽),管道施工完,采用水泥砂浆做保护层,保护层高度不能高于成活地面高。

地面敷设管槽做法之一

地面敷设标准做法之二
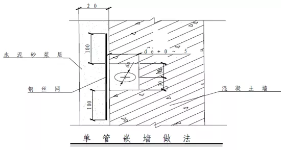
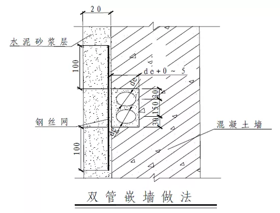
2、嵌墙内管道施工大样图
说明:管道嵌在卫生间、厨房墙内的管道,深和宽按照本图要求,但是表面不包括装饰层厚度;管道安装完,用水泥砂浆土填充。如果材料为PP-R管,表面抹灰层内设钢丝网,钢丝网规格为10*10*0.5mm。


管道支架自由臂安装大样图

本图为PP-R管道自由臂安装标准
给水管道穿越楼板及墙大样图
1、管道楼面套管
PP-R管、铝塑复合管管道穿楼板距地面300mm设固定支架,钢管支架按照规范执行;将套管内壁清理干净,填料选用发泡聚乙烯或聚氨酯等材料,封堵前将套管内壁清理干净。厨房、卫生间套管高出地面50mm。

穿楼板套管尺寸表


2、钢管、PP-R、铝塑复合管穿墙套管
说明:管道穿墙套管表面用砂纸打毛,穿墙套管可采用U-PVC或钢管,穿越地下室外墙必须用钢套管;柔性填料选用聚氨酯发泡、油麻或石棉绳


给水管线穿越基础施工大样图
柔性填料可选用聚氨酯发泡材料,括号内的用于外保温管道。

给水管道穿越沉降缝抗震缝、伸缩缝大样图
说明:管道穿墙外表面应砂纸打毛,弯管两侧必须设固定支架,安装完要用柔性填料封堵。

给水管道穿越外墙的标准做法
说明:管道从室内地面保护层通过墙内返到200mm拐到外墙墙内,再返到室外地面保护层内,施工完后,内外墙用水泥砂浆抹平。

排水管道穿越楼板、屋面、地下室外墙或基础大样图
管道穿墙套管表面用砂纸打毛,穿墙套管可采用U-PVC或钢管,穿越地下室外墙必须用钢套管;柔性填料选用聚氨酯发泡、油麻或石棉绳。






成品管支架大样图
PP-R管、铝塑复合管的支架、吊架施工参见下图。

热水器进出水管安装大样图


水表安装大样图
L与水表规格有关:DN15水表L≥400mm;DN20水表L≥500mm ;DN25水表L≥600mm。

